戸建物件 4,730万円

担当者より
真栄里の静かな住宅街で、家族それぞれの暮らしを大切にできる2世帯物件。
学校や生活施設も身近で、安心して長く住める環境が整っています。
自宅としても、賃貸併用としても活躍する、暮らしの幅が広がる住まいです。
※1階空室、2階空き予定(R8.1月下旬)
| 所在地 | 石垣市字真栄里173番地7 |
|---|---|
| 地域 / 学区 | 真栄里 / 八島学区 |
| 権利 | 所有権 |
| セットバック | |
| 接道状況 | 南側公道幅員約4m,間口約17m |
| 建物構造 | 鉄筋コンクリートブロック造 |
| 借地料 | |
| 引渡時期 | 相談 |
商談中
| 価格 | 4,730万円 |
|---|---|
| 土地面積 | 331.23㎡ (100.2坪) |
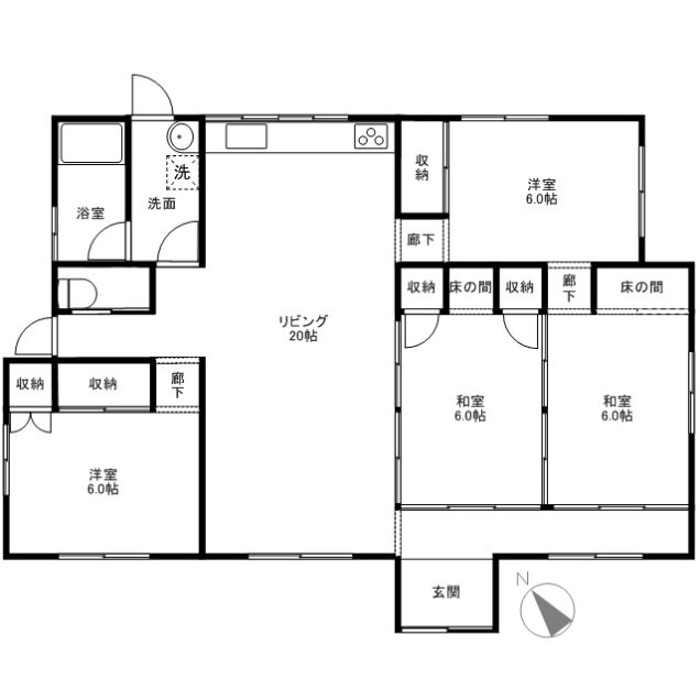
| 間取り | 4LDK |
| 建物面積 | 182.31㎡ (55.15坪) |
| 築年月 | 1996年6月(築29年) |
| 所在地 | 石垣市字真栄里173番地7 |
| 建ぺい率 | 50% |
| 容積率 | 100% |
| 幅員 | 4m |
| 接道長さ | 17m |
| 地目 | 宅地 |
|---|---|
| 都市計画 | 未線引区域 |
| 用途地域 | 第一種低層住居専用 |
| 取引態様 | 媒介(仲介) |
| 水道 | 公営水道 |
|---|---|
| 電気 | 沖縄電力 |
| ガス | プロパン |
| 下水 | 浄化槽 |
| 物件番号 |
掲載されている物件データが現況と異なる場合は現況を優先します。
弊社は予約優先です。予約のない方はお待ちいただく場合がございます。事前予約の方は、ご案内含め全てスムーズに進みます。